Afspraak maken
Bel mij
woning
Hendrik-Ido-Ambacht

Agnes Bartoutslaan 66

€ 535.000,- k.k.

Verrassend ruime woning uit 1998 op een prachtige locatie in de wijk Sandelingen. Dat is de Agnes Bartoutslaan 6...

145 m²
130 m²
7 kamers
makelaar

Ik ben Ewout, aangenaam.
Interesse in deze woning?

Omschrijving

Verrassend ruime woning uit 1998 op een prachtige locatie in de wijk Sandelingen. Dat is de Agnes Bartoutslaan 66. Een moderne woning met diepe achtertuin v.v. overkapping en met maar liefst 5 slaapkamers. Een ideale woning voor een gezin of om vanuit huis te werken.

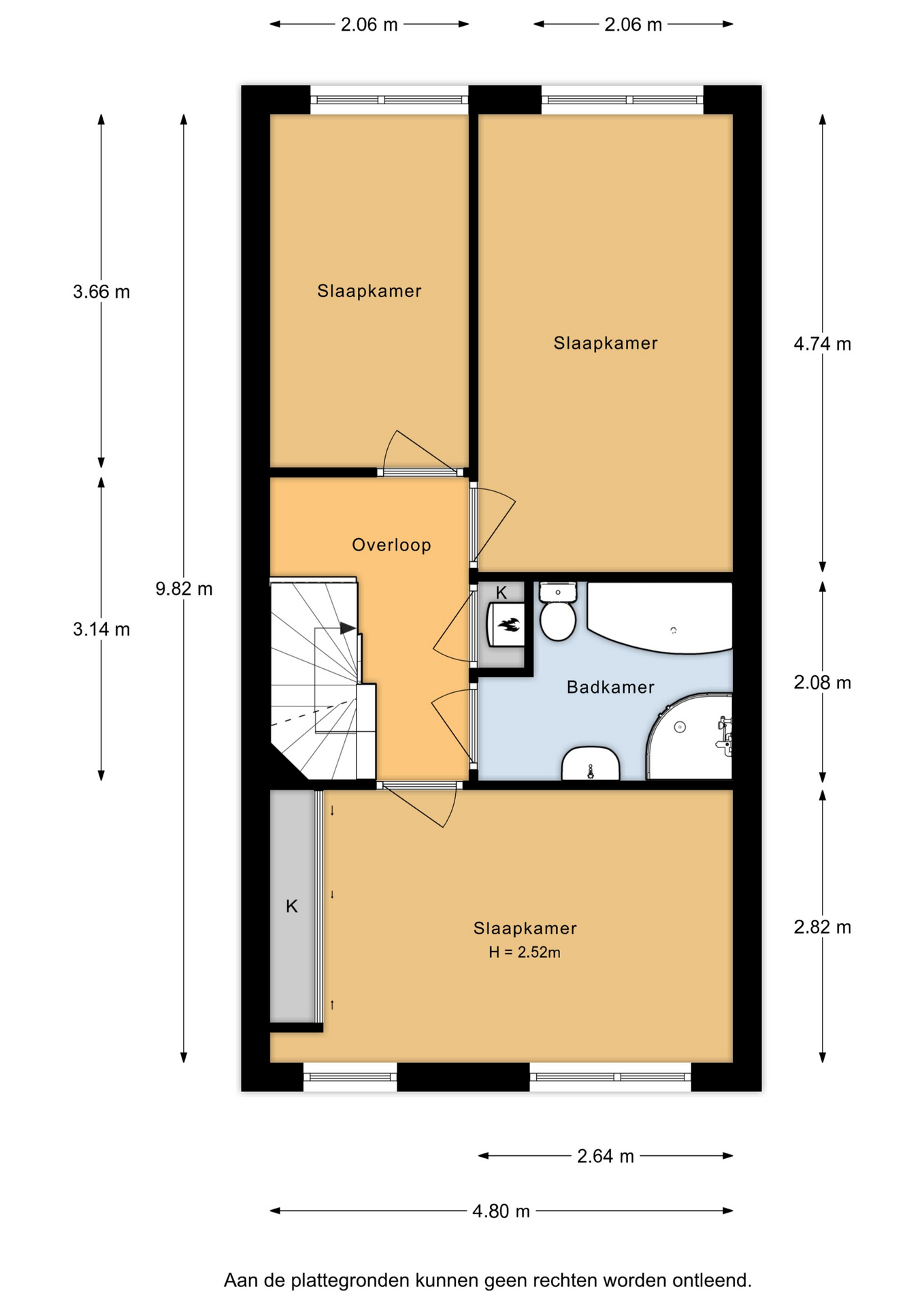
De woning heeft een ruime tuingerichte woonkamer met schuifpui naar de achtertuin. Aan de voorzijde bevindt zich de moderne in L-vorm opgestelde keuken. De eerste verdieping biedt ruimte aan 3 slaapkamers en de badkamer. Op de 2e verdieping zijn nog 2 ruime slaapkamers beiden met dakkapel aanwezig.

De ligging van de woning is op een kindvriendelijke locatie centraal in de wijk Sandelingen. Alle denkbare voorzieningen zoals basisscholen, kinderdagverblijf, winkelcentrum Reeweg ,Louwersplein en het receratiegebied Sandelingenpark zijn op loopafstand. Verder is de bereikbaarheid erg gunstig met uitvalswegen naar de A15 (richting Gorinchem/Nijmegen) en A16 (Rotterdam/Breda) of via het uitgebreide openbaarvervoer netwerk. Voor sport en ontspanning kunt u terecht in één van de nabijgelegen fitnesscentra of restaurants.

Interesse gewekt, maak dan een afspraak via ons kantoor voor een persoonlijke bezichtiging!

We zetten de belangrijkste punten op een rij;
- Energielabel A geldig tot 15-05-2035
- Schilderwerk buitenzijde uitgevoerd in voorjaar 2025
- Aanbouw woonkamer met schuifpui
- Begane grond v.v. vloerverwarming
- Slaapkamers 1e verdieping v.v. rolluiken
- Terraszonwering aan achterzijde woonkamer
- 2e verdieping v.v. dakkapel aan voor- en achterzijde
- Airconditioning op 2e verdieping
- Aparte wasruimte op de 2e verdieping
- Ruim 10 meter diepe achtertuin met vrijstaande berging v.v. elektra, zonnig terras en overkapping
- Voldoende parkeergelegenheid
- Oplevering in overleg medio Q2

Voor een indeling van de woning verwijzen wij u naar de plattegronden met maatvoering in de brochure. De foto’s en video op o.a. Funda.nl geven een goede indruk van de woning en de aanwezige voorzieningen. Voor een persoonlijke bezichtiging maakt u een afspraak via ons kantoor.

Lees verder

Kenmerken

Overdracht
Vraagprijs
€ 535.000,- k.k.
Status
beschikbaar
Aanvaarding
in overleg
Bouw
Soort woning
woonhuis
Soort woonhuis
eengezinswoning
Type woonhuis
tussenwoning
Aantal woonlagen
3
Bouwvorm
bestaande bouw
Bouwjaar
1998
Huidige bestemming
woonruimte
Onderhoud binnen
goed
Onderhoud buiten
goed
Voorzieningen
mechanische ventilatie, rolluiken, tv kabel, buitenzonwering, airconditioning, schuifpui, glasvezel kabel
Isolatie
dakisolatie, muurisolatie, vloerisolatie, dubbel glas, volledig geisoleerd, hr glas
Energie
Energielabel
A
Oppervlakten en inhoud
Woonoppervlakte
145 m²
Perceeloppervlakte
130 m²
Inhoud
512 m³
Inpandige ruimte oppervlakte
6 m²
Bergruimte oppervlakte
7 m²
Indeling
Aantal kamers
7
Aantal slaapkamers
5
Garage / Schuur / Berging
Garage
geen garage
Parkeergelegenheid
openbaar parkeren
Schuur/berging
vrijstaand hout
Alle kenmerken
wisse watermark

Wil je weten hoeveel je kunt lenen?

Maak een afspraak voor een hypotheekgesprek, deze is geheel vrijblijvend en gratis. Benieuwd wat er allemaal bij een hypotheekgesprek komt kijken? Bekijk ons stappenplan.

Afspraak maken

Media

Agnes Bartoutslaan 66
Agnes Bartoutslaan 66
Agnes Bartoutslaan 66
Agnes Bartoutslaan 66
+ 50

Kaart en buurt

Restaurant
Winkels
Banken
Sportschool
Parken
Scholen
Café
Parkeerterrein
Busstation
Ziekenhuis
Musea
Tankstation

Documenten

Plattegronden

De highlights van jouw nieuwe huis op een rijtje

Agnes Bartoutslaan 66

Hendrik-Ido-Ambacht

€ 535.000,- k.k.

145 m²
130 m²
7 kamers
makelaar

Ik ben Ewout, aangenaam.
Interesse in deze woning?

Wat klanten over ons zeggen

Alle reviews
Erg goed begeleid voor de verkoop van onze woning. Zeer deskundig en op de hoogte van de (lokale) markt. Korte lijnen en zeer prettig contact!
Een funda gebruiker
Goed plan gemaakt, en een prima uitvoering! De service en communicatie was buitengewoon! Wij zijn meer dan tevreden!
Dhr. W. Peekstok
Goed contact met de makelaar en het team, fijne begeleiding bij de verkoop, altijd snel contact mogelijk.
Amanda Oudijn
Open voor input vanuit de verkoper! Luisterend oor! Komt de afspraken op tijd en to the point na. Geen poespas. Recht door zee. Kortom you see is what you get!
Dhr. Van den Berg
makelaar

Ik ben Christiaan,
aangenaam

Wil je weten wat ik kan betekenen voor de verkoop of aankoop van jouw woning? Neem dan contact met mij op.

icon-huis

Gratis zoekopdracht

Als eerste op de hoogte van ons nieuwe woningaanbod?

Schrijf je vrijblijvend in en ontvang het nieuwe woningaanbod in je mailbox. Speciaal afgestemd op jouw woonwensen.

Inschrijven