Afspraak maken
Bel mij
woning
Hendrik-Ido-Ambacht

De Heerenhof 10

€ 399.000,- k.k.

Ruime hoekwoning in een zeer nette staat! Aan de Heerenhof 10 in Hendrik-Ido-Ambacht ligt deze fraaie woning uit...

93 m²
67 m²
4 kamers
makelaar

Ik ben Niels, aangenaam.
Interesse in deze woning?

Omschrijving

Ruime hoekwoning in een zeer nette staat! Aan de Heerenhof 10 in Hendrik-Ido-Ambacht ligt deze fraaie woning uit 2013, die met de ligging op de hoek en de dwarskap extra veel ruimte biedt! Daarnaast is de woning zeer goed onderhouden en heeft het van origine een hoge isolatiewaarde. Kortom de perfecte woning om te starten!

Beneden is er een heerlijk lichte woonkamer en nette open keuken terug te vinden, boven volgen een tweetal grote slaapkamers en de eveneens zeer nette badkamer. Door de dwarskap heeft de woning een grote tweede verdieping, met naast de derde slaapkamer hier ook een zeer ruime overloop! Op het dak liggen vervolgens een zestal zonnepanelen.

Achter de voortuin ligt de entree die in de hal uitkomt. Deze geeft toegang tot als eerste de meterkast, het toilet en vervolgens de keuken. De moderne L-vormige opstelling ligt aan de voorzijde en is voorzien van inductiekookplaat, afzuigkap, vaatwasser, koelkast, close-in boiler en combimagnetron.

Achterin ligt vervolgens de woonkamer, die door de grote pui heerlijk veel natuurlijk lichtinval heeft. Door de schuifpui is het achtergelegen balkon te bereiken. In deze hoek van de woonkamer is het zitgedeelte gelegen, hiervoor ligt het eetgedeelte.

Middels de trap vanuit de woonkamer is de overloop van de eerste verdieping te bereiken. Aan weerszijden van het huis liggen over de gehele breedte twee grote slaapkamers. Hiertussen ligt de mooie badkamer, die bestaat uit een douche, wastafel en tweede toilet.

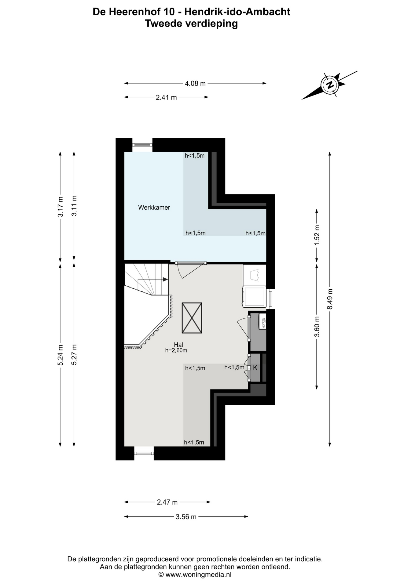
Ten opzichte van de andere tussenwoningen heeft deze woning een extra grote tweede verdieping met de derde slaapkamer! Daarvoor ligt een ruime overloop, waar eventueel in de punt nog meer ruimte is voor bijvoorbeeld een werkruimte. Er is hier ook plek voor de witgoedapparatuur en de cv-ketel hangt er in een afgesloten ruimte.

In de ochtend en middag kan er heerlijk genoten worden van de zon op het balkon achter. Later op de dag draait deze over de woning en kan er tot in de avond in de voortuin genoten worden van de zon.

Lees verder

Kenmerken

Overdracht
Vraagprijs
€ 399.000,- k.k.
Status
beschikbaar
Aanvaarding
per datum
Bouw
Soort woning
woonhuis
Soort woonhuis
eengezinswoning
Type woonhuis
hoekwoning
Aantal woonlagen
3
Bouwvorm
bestaande bouw
Bouwjaar
2013
Huidige bestemming
woonruimte
Onderhoud binnen
uitstekend
Onderhoud buiten
uitstekend
Voorzieningen
mechanische ventilatie, rolluiken, tv kabel, buitenzonwering, schuifpui, dakraam, glasvezel kabel, zonnepanelen
Isolatie
dakisolatie, muurisolatie, vloerisolatie, dubbel glas, volledig geisoleerd
Energie
Energielabel
A
Verwarming
cv ketel
Warm water
cv ketel
C.V.-ketel
gas gestookte combi-ketel uit 2013, eigendom
Oppervlakten en inhoud
Woonoppervlakte
93 m²
Perceeloppervlakte
67 m²
Inhoud
364 m³
Inpandige ruimte oppervlakte
1 m²
Buitenruimte oppervlakte
4 m²
Indeling
Aantal kamers
4
Aantal slaapkamers
3
Garage / Schuur / Berging
Garage
geen garage
Parkeergelegenheid
openbaar parkeren
Alle kenmerken
wisse watermark

Wil je weten hoeveel je kunt lenen?

Maak een afspraak voor een hypotheekgesprek, deze is geheel vrijblijvend en gratis. Benieuwd wat er allemaal bij een hypotheekgesprek komt kijken? Bekijk ons stappenplan.

Afspraak maken

Media

De Heerenhof 10
De Heerenhof 10
De Heerenhof 10
De Heerenhof 10
+ 26

Kaart en buurt

Restaurant
Winkels
Banken
Sportschool
Parken
Scholen
Café
Parkeerterrein
Busstation
Ziekenhuis
Musea
Tankstation

Documenten

Plattegronden

De highlights van jouw nieuwe huis op een rijtje

De Heerenhof 10

Hendrik-Ido-Ambacht

€ 399.000,- k.k.

93 m²
67 m²
4 kamers
makelaar

Ik ben Niels, aangenaam.
Interesse in deze woning?

Wat klanten over ons zeggen

Alle reviews
Erg goed begeleid voor de verkoop van onze woning. Zeer deskundig en op de hoogte van de (lokale) markt. Korte lijnen en zeer prettig contact!
Een funda gebruiker
Goed plan gemaakt, en een prima uitvoering! De service en communicatie was buitengewoon! Wij zijn meer dan tevreden!
Dhr. W. Peekstok
Goed contact met de makelaar en het team, fijne begeleiding bij de verkoop, altijd snel contact mogelijk.
Amanda Oudijn
Open voor input vanuit de verkoper! Luisterend oor! Komt de afspraken op tijd en to the point na. Geen poespas. Recht door zee. Kortom you see is what you get!
Dhr. Van den Berg
makelaar

Ik ben Ewout,
aangenaam

Wil je weten wat ik kan betekenen voor de verkoop of aankoop van jouw woning? Neem dan contact met mij op.

icon-huis

Gratis zoekopdracht

Als eerste op de hoogte van ons nieuwe woningaanbod?

Schrijf je vrijblijvend in en ontvang het nieuwe woningaanbod in je mailbox. Speciaal afgestemd op jouw woonwensen.

Inschrijven