Afspraak maken
Bel mij
woning
Hendrik-Ido-Ambacht

Dijkmeesterstraat 12

€ 420.000,- k.k.

Op zoek naar een leuke instapklare woning met garage? Dan is deze verzorgde hoekwoning aan de Dijkmeesterstraat...

88 m²
196 m²
5 kamers
makelaar

Ik ben Christiaan, aangenaam.
Interesse in deze woning?

Omschrijving

Op zoek naar een leuke instapklare woning met garage? Dan is deze verzorgde hoekwoning aan de Dijkmeesterstraat 12 absoluut een bezichtiging waard!

Deze in 1959 gebouwde woning is in de achterliggende tijd geheel gemoderniseerd en in een fraaie eigentijdse stijl afgewerkt. De woning heeft een woonoppervlakte van 88 m², verdeeld over een sfeervolle woonkamer met een luxe open keuken, 3 slaapkamers en een mooie badkamer. De 2e verdieping is voorzien van een dakopbouw waardoor veel extra ruimte is gewonnen.

Dankzij de hoekligging profiteer je bovendien van extra privacy en kan je in de tuin de hele dag genieten van de zon. Als extra pluspunt beschikt de woning over parkeergelegenheid op eigen terrein en over een garage.
De ligging is centraal, op korte afstand tref je allerlei voorzieningen zoals scholen, winkels en openbaar vervoer. Ook voor kinderen is het een fijne buurt, letterlijk om de hoek kunnen ze geweldig spelen in natuurspeeltuin De Kikkersprong.

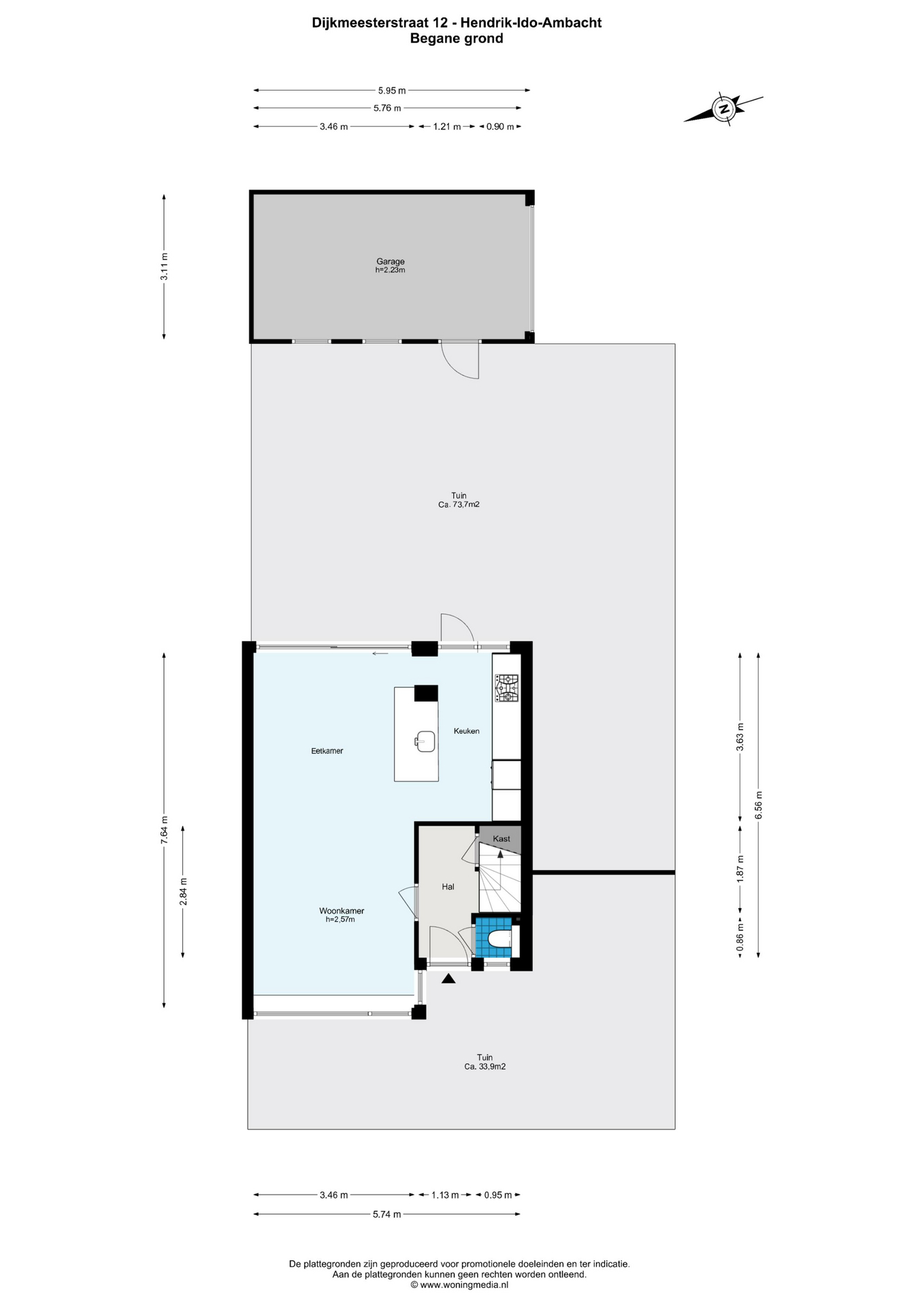
Indeling:

Begane grond: entree in hal met toiletruimte, bergkast met meterkast en de trapopgang naar de 1e verdieping. De toiletruimte is geheel betegeld en voorzien van een wandcloset. De groepenkast is recent vernieuwd en de trap is voorzien van overzettreden.
Sfeervolle woonkamer met aan de voorzijde een erker en aan de achterzijde een kunststof schuifpui naar de achtertuin. De vloer is afgewerkt met een visgraat pvc-vloer en de grote ramen zorgen voor veel natuurlijk licht. De keuken is uitgebouwd en heeft parallelopstelling met eiland. De aanwezige inbouwapparatuur betreft een 5-pits gaskookplaat, oven, afzuigkap, magnetron, vaatwasser en een koel-/vriescombinatie. Ook vanuit de keuken is er toegang tot de achtertuin.

1e verdieping: overloop met toegang tot een werkruimte, 2 slaapkamers en de badkamer.
In de voormalige badkamer is een werkplek gerealiseerd.
Slaapkamer aan de voorzijde van 1.97 x 3.46 m met toegang tot een balkon.
Slaapkamer aan de achterzijde van 3.54 x 3.46 m met een vaste kast en eveneens toegang tot een balkon.
Luxe complete badkamer (2018) voorzien van een inloopdouche, 2e toilet en een wasatafelmeubel.

2e verdieping: de 2e verdieping is voorzien van een dakopbouw waardoor veel extra woonruimte is gerealiseerd. Voorzolder met aansluitingen voor de wasapparatuur, de opstelplaats van de c.v.-combiketel en opbergruimte achter knieschotten. Ruime slaapkamer van 2.52 x 3.45 m. In deze kamer is er ook opbergruimte achter de knieschotten aanwezig.

Tuin:
De grote achtertuin is gelegen op het zuidoosten en is voorzien van een garage. Door de gunstige ligging op de hoek kan je van de morgen tot in de avond genieten van de zon. De garage heeft een afmeting van 5.75 x 3.10 m en is voorzien van elektra.
Aan de voorzijde is er parkeergelegenheid op eigen terrein.

Bijzonderheden:
-energielabel C
-de woning is geheel voorzien van dubbel glas (gedeeltelijk HR++ glas)
-de gevels en de begane grondvloer zijn nageïsoleerd
-kindvriendelijk woonomgeving
-instapklare woning
-perceeloppervlakte 196 m²

Lees verder

Kenmerken

Overdracht
Vraagprijs
€ 420.000,- k.k.
Status
beschikbaar
Aanvaarding
in overleg
Bouw
Soort woning
woonhuis
Soort woonhuis
eengezinswoning
Type woonhuis
hoekwoning
Aantal woonlagen
3
Bouwvorm
bestaande bouw
Bouwjaar
1959
Huidige bestemming
woonruimte
Onderhoud binnen
goed
Onderhoud buiten
goed
Voorzieningen
tv kabel, glasvezel kabel
Isolatie
dakisolatie, dubbel glas
Energie
Energielabel
C
Verwarming
cv ketel
Warm water
cv ketel
C.V.-ketel
combi-ketel, eigendom
Oppervlakten en inhoud
Woonoppervlakte
88 m²
Perceeloppervlakte
196 m²
Inhoud
309 m³
Bergruimte oppervlakte
19 m²
Buitenruimte oppervlakte
8 m²
Indeling
Aantal kamers
5
Aantal slaapkamers
3
Garage / Schuur / Berging
Garage
vrijstaande stenen garage
Parkeergelegenheid
op eigen terrein
Alle kenmerken
wisse watermark

Wil je weten hoeveel je kunt lenen?

Maak een afspraak voor een hypotheekgesprek, deze is geheel vrijblijvend en gratis. Benieuwd wat er allemaal bij een hypotheekgesprek komt kijken? Bekijk ons stappenplan.

Afspraak maken

Media

Dijkmeesterstraat 12
Dijkmeesterstraat 12
Dijkmeesterstraat 12
Dijkmeesterstraat 12
+ 25

Kaart en buurt

Restaurant
Winkels
Banken
Sportschool
Parken
Scholen
Café
Parkeerterrein
Busstation
Ziekenhuis
Musea
Tankstation

Documenten

Plattegronden

De highlights van jouw nieuwe huis op een rijtje

Dijkmeesterstraat 12

Hendrik-Ido-Ambacht

€ 420.000,- k.k.

88 m²
196 m²
5 kamers
makelaar

Ik ben Christiaan, aangenaam.
Interesse in deze woning?

Wat klanten over ons zeggen

Alle reviews
Erg goed begeleid voor de verkoop van onze woning. Zeer deskundig en op de hoogte van de (lokale) markt. Korte lijnen en zeer prettig contact!
Een funda gebruiker
Goed plan gemaakt, en een prima uitvoering! De service en communicatie was buitengewoon! Wij zijn meer dan tevreden!
Dhr. W. Peekstok
Goed contact met de makelaar en het team, fijne begeleiding bij de verkoop, altijd snel contact mogelijk.
Amanda Oudijn
Open voor input vanuit de verkoper! Luisterend oor! Komt de afspraken op tijd en to the point na. Geen poespas. Recht door zee. Kortom you see is what you get!
Dhr. Van den Berg
makelaar

Ik ben Sam,
aangenaam

Wil je weten wat ik kan betekenen voor de verkoop of aankoop van jouw woning? Neem dan contact met mij op.

icon-huis

Gratis zoekopdracht

Als eerste op de hoogte van ons nieuwe woningaanbod?

Schrijf je vrijblijvend in en ontvang het nieuwe woningaanbod in je mailbox. Speciaal afgestemd op jouw woonwensen.

Inschrijven