Afspraak maken
Bel mij
makelaar

Ik ben Ewout, aangenaam.
Interesse in deze woning?

Omschrijving

Ben je starter op de woningmarkt of op zoek naar een ruime gezinswoning voor een gezin? Een woning met volop ruimte en een uitstekende ligging? Dan is deze prachtige tussenwoning aan de Huysweer 13 precies wat je zoekt! Met een woonoppervlakte van maar liefst 138 m², 4 ruime slaapkamers én een heerlijke tuin, biedt deze woning alles wat je nodig hebt. Interesse gewekt, maak dan een afspraak via ons kantoor voor een persoonlijke bezichtiging!

De ligging van de woning is op een centrale locatie in de wijk Krommeweg. Alle denkbare voorzieningen zoals basisscholen, kinderdagverblijf, winkelcentrum Louwersplein en het recreatiegebied De Sandelingen zijn op loopafstand. Verder is de bereikbaarheid erg gunstig met uitvalswegen naar de A15 (richting Gorinchem/Nijmegen) en A16 (Rotterdam/Breda) of via het uitgebreide openbaarvervoer netwerk. Voor sport en ontspanning kunt u terecht bij één van de nabijgelegen verenigingen, fitnesscentra of restaurants.

We zetten de belangrijkste punten op een rij;

- Energielabel B (geldig tot 28-10-2034)
- Moderne toiletruimte
- Ruime woonkamer met open haard
- 3 ruime slaapkamers en royale badkamer op de verdieping
- Airconditioning
- Ruime zolderkamer om te gebruiken als slaapkamer maar ook geschikt als hobbyruimte
- Ruime aangebouwde berging met opstelplaats van de wasapparatuur
- Woonoppervlakte van 138m²
- Bouwjaar 1977
- Oplevering in overleg, 8 weken na oplevering nieuwbouw uiterlijk 31-07-2026

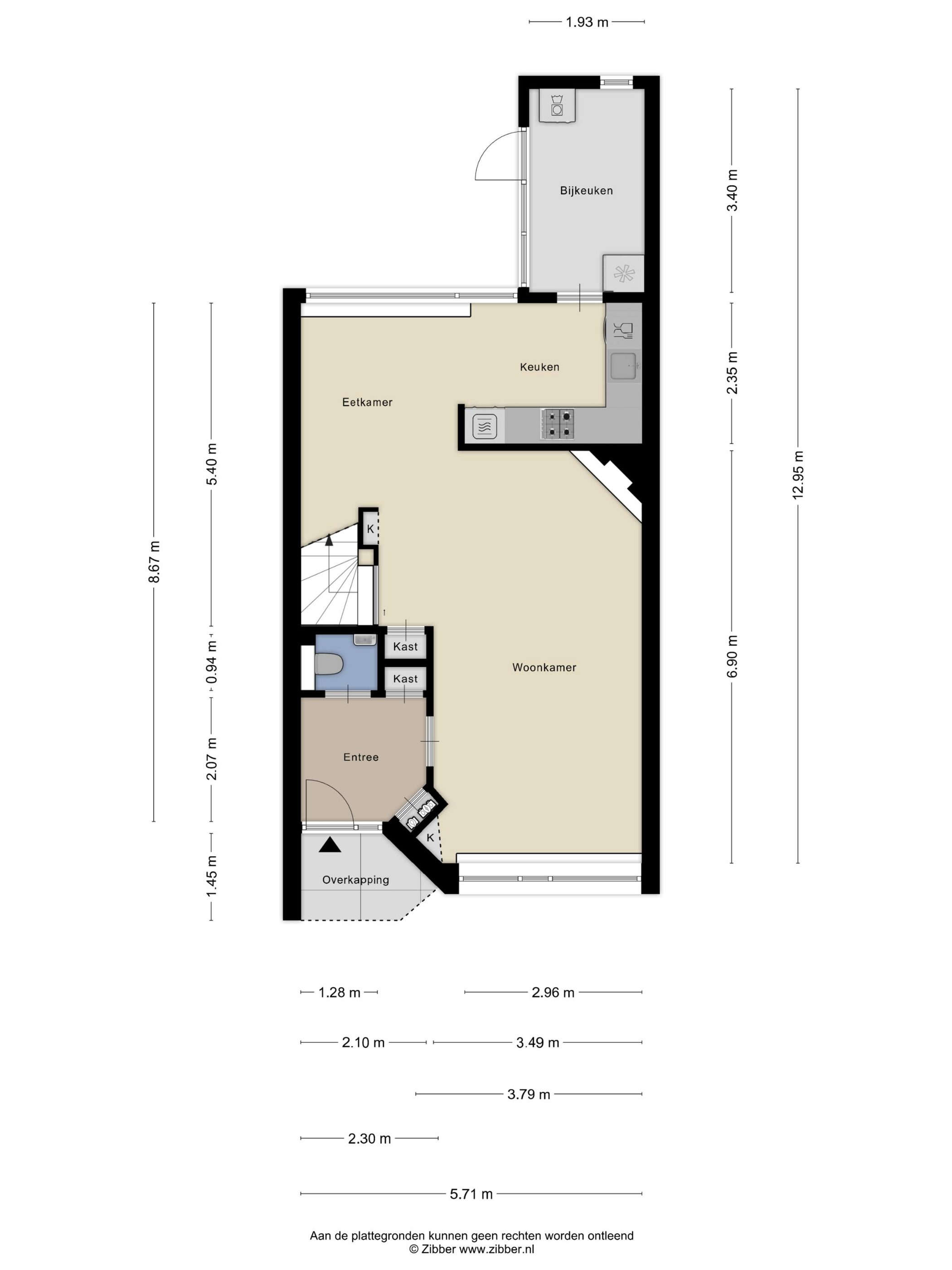
Voor een indeling van de woning verwijzen wij u naar de plattegronden met maatvoering in de brochure. De foto’s en video op o.a. Funda.nl geven een goede indruk van de woning en de aanwezige voorzieningen. Voor een persoonlijke bezichtiging maakt u een afspraak via ons kantoor.

Lees verder

Kenmerken

Overdracht
Vraagprijs
€ 425.000,- k.k.
Status
beschikbaar
Aanvaarding
in overleg
Bouw
Soort woning
woonhuis
Soort woonhuis
eengezinswoning
Type woonhuis
tussenwoning
Aantal woonlagen
3
Bouwvorm
bestaande bouw
Bouwjaar
1977
Huidige bestemming
woonruimte
Onderhoud binnen
redelijk_tot_goed
Onderhoud buiten
redelijk_tot_goed
Voorzieningen
mechanische ventilatie, rolluiken, tv kabel, buitenzonwering, rookkanaal
Isolatie
muurisolatie, gedeeltelijk dubbel glas
Energie
Energielabel
B
Verwarming
cv ketel
Warm water
cv ketel
C.V.-ketel
gas gestookte combi-ketel uit 2020 van HR-trendline, eigendom
Oppervlakten en inhoud
Woonoppervlakte
138 m²
Perceeloppervlakte
172 m²
Inhoud
489 m³
Buitenruimte oppervlakte
5 m²
Indeling
Aantal kamers
6
Aantal slaapkamers
4
Garage / Schuur / Berging
Garage
geen garage
Parkeergelegenheid
openbaar parkeren
Schuur/berging
aangebouwd steen
Alle kenmerken
wisse watermark

Wil je weten hoeveel je kunt lenen?

Maak een afspraak voor een hypotheekgesprek, deze is geheel vrijblijvend en gratis. Benieuwd wat er allemaal bij een hypotheekgesprek komt kijken? Bekijk ons stappenplan.

Afspraak maken

Media

Huysweer 13
Huysweer 13
Huysweer 13
Huysweer 13
+ 35

Kaart en buurt

Restaurant
Winkels
Banken
Sportschool
Parken
Scholen
Café
Parkeerterrein
Busstation
Ziekenhuis
Musea
Tankstation

Documenten

Plattegronden

De highlights van jouw nieuwe huis op een rijtje

Huysweer 13

Hendrik-Ido-Ambacht

€ 425.000,- k.k.

138 m²
172 m²
6 kamers
makelaar

Ik ben Ewout, aangenaam.
Interesse in deze woning?

Wat klanten over ons zeggen

Alle reviews
Erg goed begeleid voor de verkoop van onze woning. Zeer deskundig en op de hoogte van de (lokale) markt. Korte lijnen en zeer prettig contact!
Een funda gebruiker
Goed plan gemaakt, en een prima uitvoering! De service en communicatie was buitengewoon! Wij zijn meer dan tevreden!
Dhr. W. Peekstok
Goed contact met de makelaar en het team, fijne begeleiding bij de verkoop, altijd snel contact mogelijk.
Amanda Oudijn
Open voor input vanuit de verkoper! Luisterend oor! Komt de afspraken op tijd en to the point na. Geen poespas. Recht door zee. Kortom you see is what you get!
Dhr. Van den Berg
makelaar

Ik ben Christiaan,
aangenaam

Wil je weten wat ik kan betekenen voor de verkoop of aankoop van jouw woning? Neem dan contact met mij op.

icon-huis

Gratis zoekopdracht

Als eerste op de hoogte van ons nieuwe woningaanbod?

Schrijf je vrijblijvend in en ontvang het nieuwe woningaanbod in je mailbox. Speciaal afgestemd op jouw woonwensen.

Inschrijven