Afspraak maken
Bel mij
woning
Verkocht onder voorbehoud
Zwijndrecht

Oudeland 11

Mooie eindwoning met uitgebouwde woonkamer, 5 slaapkamers en energielabel A!

Ben je op zoek naar een roya...

118 m²
139 m²
6 kamers
makelaar

Ik ben Christiaan, aangenaam.
Interesse in deze woning?

Omschrijving

Mooie eindwoning met uitgebouwde woonkamer, 5 slaapkamers en energielabel A!

Ben je op zoek naar een royale, energiezuinige woning met alles binnen handbereik? Dan is deze mooie eindwoning aan de Oudeland precies wat je zoekt! Met een woonoppervlakte van maar liefst 118 m², een uitgebouwde woonkamer, 5 slaapkamers en twee dakkapellen, biedt deze woning volop leefruimte voor het hele gezin.
De woning is voorzien van een nette keuken en badkamer en dankzij de twee dakkapellen is ook de bovenverdieping verrassend ruim en licht. De netjes aangelegde achtertuin is gelegen op het westen, hier geniet je tot in de avond van de zon.
Daarnaast beschik je over parkeergelegenheid op eigen terrein, wat het dagelijkse gemak nog verder vergroot. Met energielabel A en 14 zonnepanelen is deze woning niet alleen comfortabel, maar ook duurzaam en klaar voor de toekomst.

De ligging is ideaal: in een kindvriendelijke wijk en in de directe omgeving van winkelcentrum Oudeland voor al je dagelijkse boodschappen. Scholen, kinderopvang en speelvoorzieningen bevinden zich op loopafstand. Verder kan je heerlijk ontspannen door een wandeling langs het riviertje De Devel of in het recreatiegebied Munnikendevel.

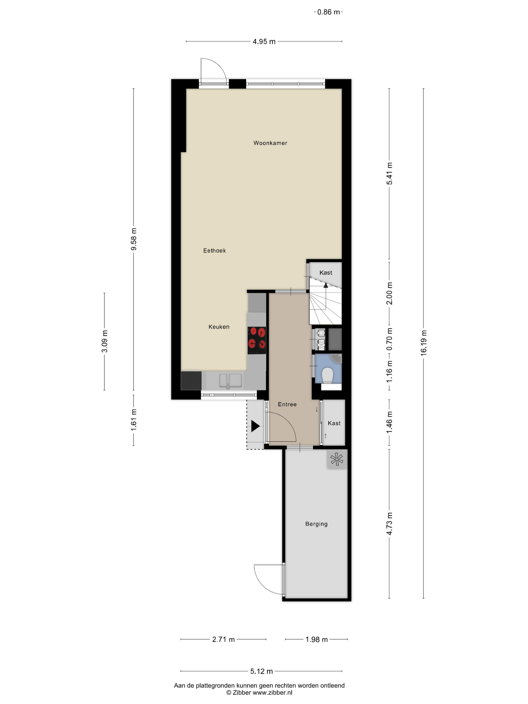
Indeling:

Begane grond: entree in een vergrote hal met toiletruimte, meterkast en toegang tot de inpandige berging. Achter schuifdeuren is de aansluiting voor wasapparatuur aanwezig. De toiletruimte is voorzien van een wandcloset en fonteintje.
De keuken is gesitueerd aan de voorzijde en heeft een L-vormige inrichting voorzien van een inductie kookplaat, afzuigkap, magnetron, oven, vaatwasser en koelkast.
Royale uitgebouwde woonkamer van ca. 32 m² met een bergkast en toegang tot de achtertuin. In het plafond zijn inbouwspots aanwezig.

1e verdieping: overloop met toegang tot 3 slaapkamers en de badkamer.
Slaapkamer aan de voorzijde van 3.04 x 2.70 m.
Slaapkamer aan de achterzijde van 3.42 x 2.06 m.
Slaapkamer aan de achterzijde 4.48 x 3.00 m.
Geheel betegelde badkamer voorzien van een ligbad met douchegelegenheid, 2e toilet en een wastafelmeubel.

2e verdieping: de tweede verdieping is voorzien van twee dakkapellen waardoor veel extra leefruimte is gewonnen. Overloop met bergruimte met opstelplaats van de c.v.-combiketel.
De beide slaapkamers hebben een gelijke afmeting van 2.70 x 3.00 m. Beide kamers zijn voorzien van een dakkapel met kunststof kozijnen en in het plafond zijn inbouwspots aanwezig.

Tuin: de netjes aangelegde achtertuin is gelegen op het westen waardoor je tot in de avond kunt genieten van de zon. In de achtertuin is elektra en een buitenkraan aanwezig. Aan de achtergevel is op de begane grond een elektrische zonnescherm gemonteerd.
De voortuin biedt parkeergelegenheid op eigen terrein en ook hier is een buitenkraan aanwezig. Tevens is er een voorbereiding voor een laadpunt voor een elektrisch auto aanwezig.

Pluspunten op een rij:
• Uitgebouwde woonkamer en twee dakkapellen
• 5 slaapkamers
• Parkeren op eigen terrein (voorbereiding laadpunt voor elektrische auto aanwezig)
• Achtertuin op het westen
• Perceeloppervlakte 139 m²
• Energielabel A en 14 zonnepanelen
• Ligging nabij winkels, scholen en recreatie

Lees verder

Kenmerken

Overdracht
Vraagprijs
€ 440.000,- k.k.
Status
verkocht onder voorbehoud
Aanvaarding
in overleg
Bouw
Soort woning
woonhuis
Soort woonhuis
eengezinswoning
Type woonhuis
eindwoning
Aantal woonlagen
3
Bouwvorm
bestaande bouw
Bouwjaar
1989
Huidige bestemming
woonruimte
Onderhoud binnen
goed
Onderhoud buiten
goed
Voorzieningen
mechanische ventilatie, tv kabel, buitenzonwering, glasvezel kabel, zonnepanelen
Energie
Energielabel
A
Verwarming
cv ketel
Warm water
cv ketel
C.V.-ketel
gas gestookte combi-ketel uit 2013, eigendom
Oppervlakten en inhoud
Woonoppervlakte
118 m²
Perceeloppervlakte
139 m²
Inhoud
450 m³
Inpandige ruimte oppervlakte
9 m²
Buitenruimte oppervlakte
1 m²
Indeling
Aantal kamers
6
Aantal slaapkamers
5
Garage / Schuur / Berging
Garage
geen garage
Parkeergelegenheid
op eigen terrein
Alle kenmerken
wisse watermark

Wil je weten hoeveel je kunt lenen?

Maak een afspraak voor een hypotheekgesprek, deze is geheel vrijblijvend en gratis. Benieuwd wat er allemaal bij een hypotheekgesprek komt kijken? Bekijk ons stappenplan.

Afspraak maken

Media

Oudeland 11
Oudeland 11
Oudeland 11
Oudeland 11
+ 29

Kaart en buurt

Restaurant
Winkels
Banken
Sportschool
Parken
Scholen
Café
Parkeerterrein
Busstation
Ziekenhuis
Musea
Tankstation

Documenten

Plattegronden

De highlights van jouw nieuwe huis op een rijtje

Oudeland 11

Zwijndrecht

118 m²
139 m²
6 kamers
makelaar

Ik ben Christiaan, aangenaam.
Interesse in deze woning?

Wat klanten over ons zeggen

Alle reviews
Erg goed begeleid voor de verkoop van onze woning. Zeer deskundig en op de hoogte van de (lokale) markt. Korte lijnen en zeer prettig contact!
Een funda gebruiker
Goed plan gemaakt, en een prima uitvoering! De service en communicatie was buitengewoon! Wij zijn meer dan tevreden!
Dhr. W. Peekstok
Goed contact met de makelaar en het team, fijne begeleiding bij de verkoop, altijd snel contact mogelijk.
Amanda Oudijn
Open voor input vanuit de verkoper! Luisterend oor! Komt de afspraken op tijd en to the point na. Geen poespas. Recht door zee. Kortom you see is what you get!
Dhr. Van den Berg
makelaar

Ik ben Sam,
aangenaam

Wil je weten wat ik kan betekenen voor de verkoop of aankoop van jouw woning? Neem dan contact met mij op.

icon-huis

Gratis zoekopdracht

Als eerste op de hoogte van ons nieuwe woningaanbod?

Schrijf je vrijblijvend in en ontvang het nieuwe woningaanbod in je mailbox. Speciaal afgestemd op jouw woonwensen.

Inschrijven