Afspraak maken
Bel mij
woning
Verkocht onder voorbehoud
Papendrecht

Staringlaan 108

Welkom bij Staringlaan 108 in Papendrecht! Ideaal voor de starter!

Ben je op zoek naar een betaalbare woni...

68 m²
0 m²
4 kamers
makelaar

Ik ben Sam, aangenaam.
Interesse in deze woning?

Omschrijving

Welkom bij Staringlaan 108 in Papendrecht! Ideaal voor de starter!

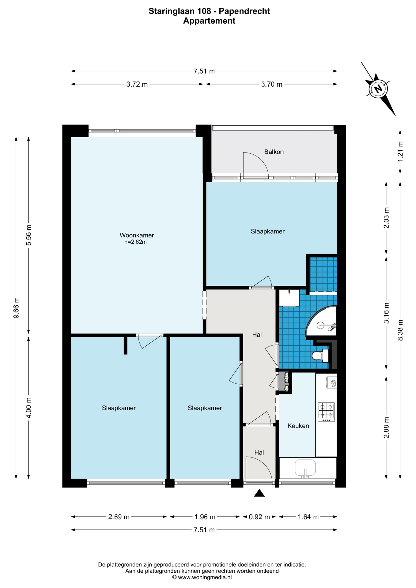
Ben je op zoek naar een betaalbare woning met volop mogelijkheden om er jouw eigen paleisje van te maken? Dan is dit appartement aan de Staringlaan 108 precies wat je zoekt! Gelegen op een rustige locatie met uitzicht over groen, biedt dit appartement een comfortabele woonruimte van 68m². Het appartement heeft 3 slaapkamers, een ruime badkamer en een heerlijk balkon op het noordwesten.

Indeling:

De grote raampartijen zorgen voor veel natuurlijk daglicht in de woonkamer, wat het woonplezier ten goede komt. De slaapkamer ernaast biedt toegang tot het balkon op het noordwesten, waar je heerlijk kunt genieten van de middag- en avondzon.

De keuken is voorzien van een L-vormige opstelling met veel bergruimte, een gas kookplaat en de 100 liter boiler voor het dagelijks warmwater gebruik.

De woning beschikt over nog twee ruime slaapkamers – ideaal voor een thuiswerkplek, logeerkamer of inloopkast. De badkamer is eenvoudig afgewerkt en uitgerust met een toilet, douchecabine en wastafelmeubel. Ook is er de aansluiting voor de wasapparatuur aanwezig.

Bij deze woning is er een inpandige berging aanwezig met een totale oppervlakte van 7m² welke ligt in de onderbouw van het complex. Het complex is toegankelijk via het trappenhuis welke beschikt over een lift.

Bijzonderheden:
- VvE bijdrage ca. € 270,25,- per maand incl. stookkosten
- Gedeeltelijk dubbele beglazing
- Deels kunststof kozijnen
- Glasvezelkabel aanwezig
- Natuurlijke ventilatie
- Blokverwarming
- Oplevering is per direct mogelijk

In de koopovereenkomst zal een niet zelf bewoond en ouderdomsclausule worden opgenomen.

Lees verder

Kenmerken

Overdracht
Vraagprijs
€ 245.000,- k.k.
Status
verkocht onder voorbehoud
Aanvaarding
direct
VvE checklist
Inschrijving KVK
Nee
Jaarlijkse vergadering
Nee
Periodieke bijdrage
Nee (270,25 per maand)
Reservefonds aanwezig
Nee
Onderhoudsplan
Nee
Opstalverzekering
Nee
Bouw
Soort woning
appartement
Soort appartement
galerijflat
Aantal woonlagen
1
Bouwvorm
bestaande bouw
Bouwjaar
1965
Open portiek
nee
Huidige bestemming
woonruimte
Onderhoud binnen
redelijk_tot_goed
Onderhoud buiten
redelijk_tot_goed
Voorzieningen
tv kabel, lift
Isolatie
gedeeltelijk dubbel glas
Energie
Energielabel
C
Verwarming
blokverwarming
Warm water
elektrische boiler eigendom
Oppervlakten en inhoud
Woonoppervlakte
68 m²
Buitenruimte oppervlakte
4 m²
Indeling
Aantal kamers
4
Aantal slaapkamers
3
Garage / Schuur / Berging
Garage
geen garage
Parkeergelegenheid
openbaar parkeren
Schuur/berging
box
Alle kenmerken
wisse watermark

Wil je weten hoeveel je kunt lenen?

Maak een afspraak voor een hypotheekgesprek, deze is geheel vrijblijvend en gratis. Benieuwd wat er allemaal bij een hypotheekgesprek komt kijken? Bekijk ons stappenplan.

Afspraak maken

Media

Staringlaan 108
Staringlaan 108
Staringlaan 108
Staringlaan 108
+ 15

Kaart en buurt

Restaurant
Winkels
Banken
Sportschool
Parken
Scholen
Café
Parkeerterrein
Busstation
Ziekenhuis
Musea
Tankstation

Documenten

Plattegronden

De highlights van jouw nieuwe huis op een rijtje

Staringlaan 108

Papendrecht

68 m²
0 m²
4 kamers
makelaar

Ik ben Sam, aangenaam.
Interesse in deze woning?

Wat klanten over ons zeggen

Alle reviews
Erg goed begeleid voor de verkoop van onze woning. Zeer deskundig en op de hoogte van de (lokale) markt. Korte lijnen en zeer prettig contact!
Een funda gebruiker
Goed plan gemaakt, en een prima uitvoering! De service en communicatie was buitengewoon! Wij zijn meer dan tevreden!
Dhr. W. Peekstok
Goed contact met de makelaar en het team, fijne begeleiding bij de verkoop, altijd snel contact mogelijk.
Amanda Oudijn
Open voor input vanuit de verkoper! Luisterend oor! Komt de afspraken op tijd en to the point na. Geen poespas. Recht door zee. Kortom you see is what you get!
Dhr. Van den Berg
makelaar

Ik ben Ewout,
aangenaam

Wil je weten wat ik kan betekenen voor de verkoop of aankoop van jouw woning? Neem dan contact met mij op.

icon-huis

Gratis zoekopdracht

Als eerste op de hoogte van ons nieuwe woningaanbod?

Schrijf je vrijblijvend in en ontvang het nieuwe woningaanbod in je mailbox. Speciaal afgestemd op jouw woonwensen.

Inschrijven